PROJEKTE
Studie Rathaus Schwaig
Erdgeschoss
Das Rathaus wurde 1956 erbaut und 1978 erweitert. Bereits 1999 wurde das Dachgeschoss teilweise ausgebaut und sollte jetzt aufgrund des Platzbedarfs weiter ausgebaut werden. So erhielt Fischer Planen und Bauen von der Gemeindeverwaltung Schwaig den Auftrag die Machbarkeit dessen zu prüfen.
Eine Aufstockung war aus Gründen des Brandschutzes und der zu geringen Tragfähigkeit der Decke nicht möglich. Wir haben im Zuge der Planung angeregt, den Raumbedarf über einen Anbau abzubilden. Auf diese Weise konnten auch die Anforderungen an die Barrierefreiheit berücksichtigt und das gesamte Haus auf einen angemessenen Standard gebracht werden.
Die Machbarkeitsstudie wurde erfolgreich abgeschlossen und unser technischer Geschäftsführer, Architekt Dipl.-Ing. (FH) Andreas Hollweck, stellte das Ergebnis der Studie im Gemeinderat vor.
Untergeschoss
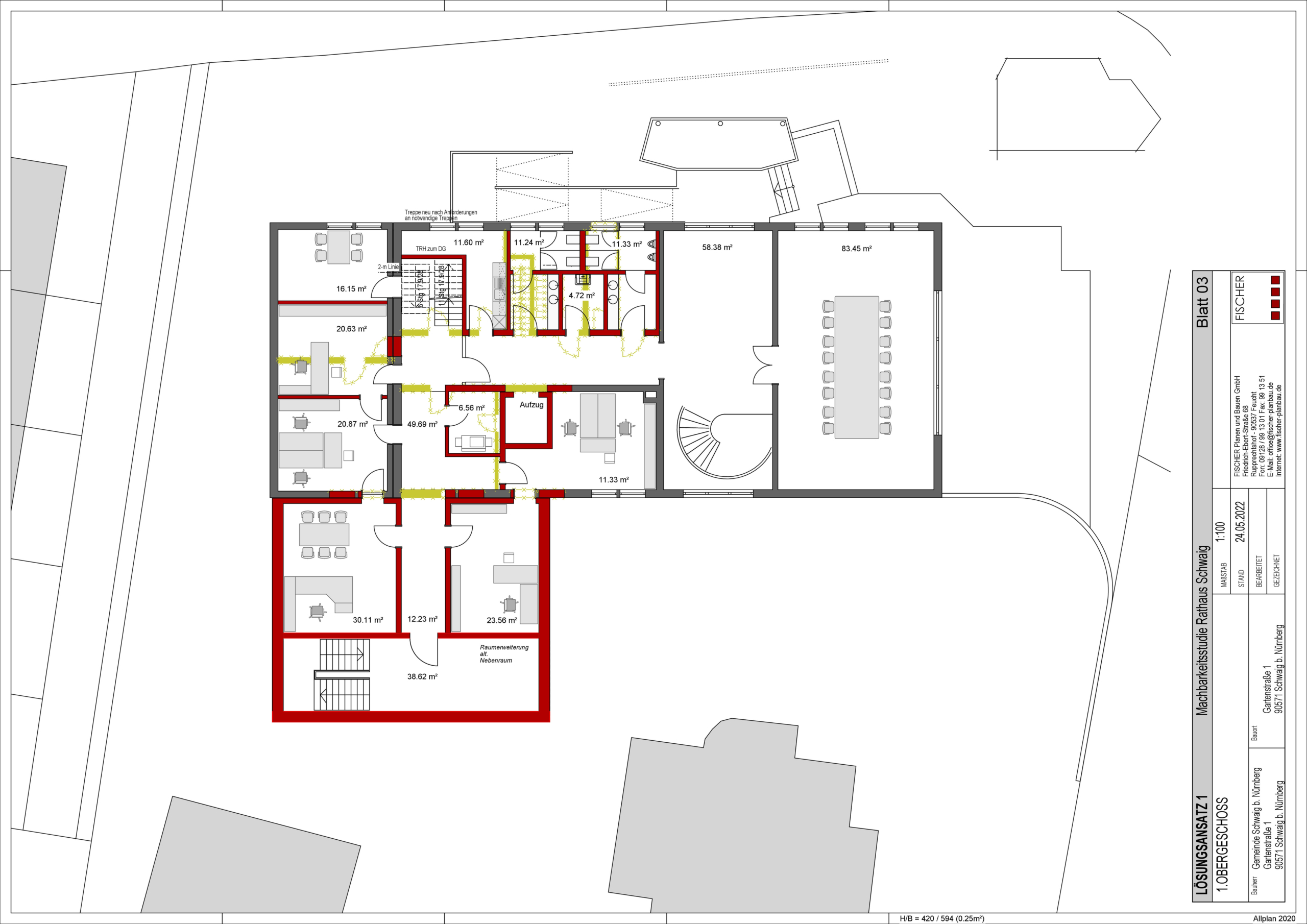
1. Obergeschoss
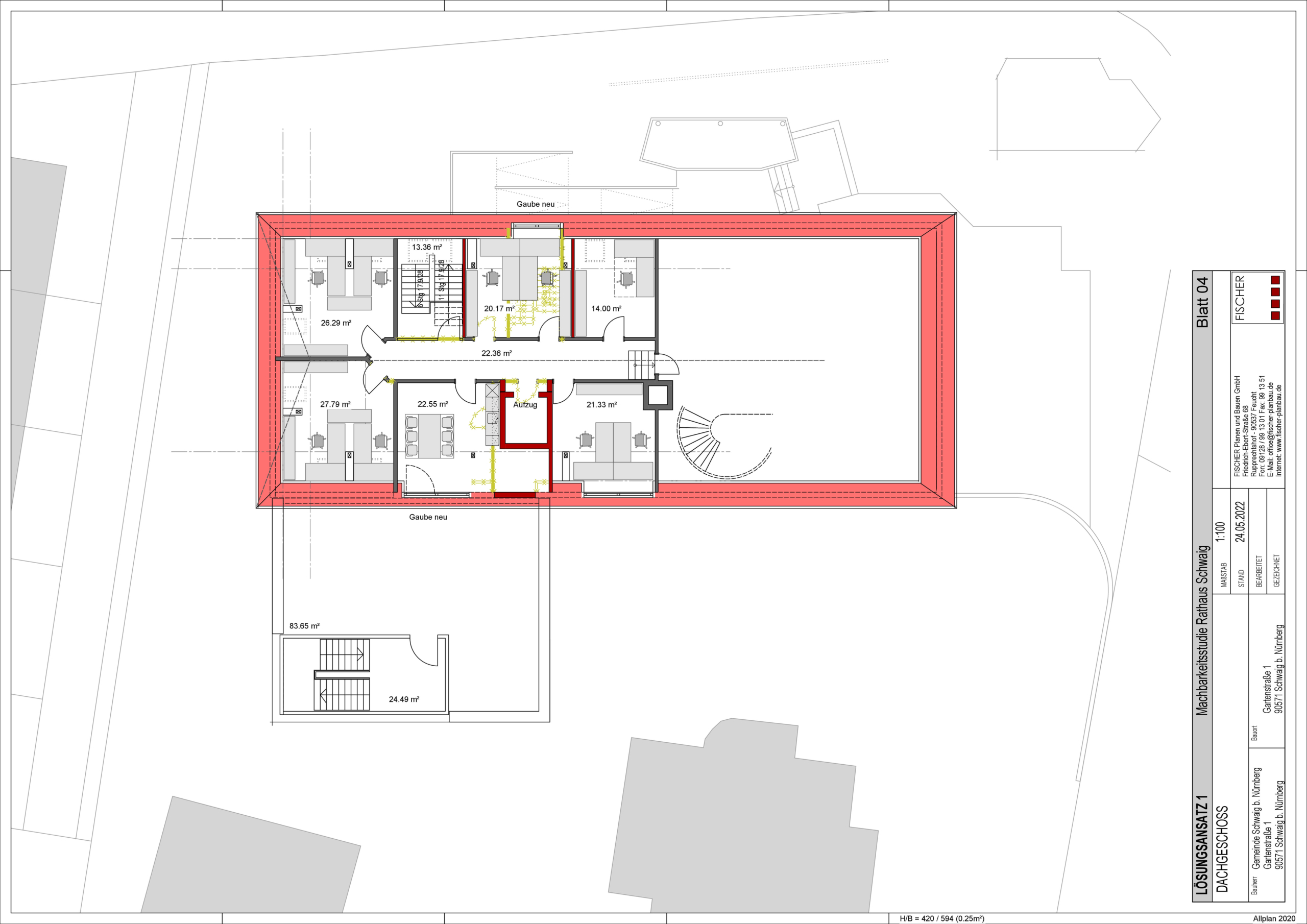
Dachgeschoss
Vorgeschlagen wurde ein Anbau Richtung Süden im westlichen Grundstücksbereich. In der Studie wurden zwei Anbauvarianten und zwei Innenraumkonzepte untersucht. In Variante 1 wurden alle Innenräume im Bestand verkleinert und an Mindestflächen nach Arbeitsstättenanforderungen angepasst. Im Gegensatz zu Variante 2, in der die wesentlichen Raumstrukturen im Bestandsgebäude erhalten bleiben.
Aufgrund des geringen Energieverbrauchs für die Beheizung und die Warmwasserbereitung war keine zusätzliche Dämmung des Gebäudes notwendig, auch die Fenster konnten bestehen bleiben.
Gemäß der Studie würden bei beiden Varianten die Abteilungen mit höherer Bürgerfrequenz, also das Ordnungsamt und das Bauamt im Erdgeschoss, das Hauptamt im ersten Obergeschoss und die Finanzverwaltung im Dachgeschoss angeordnet werden.
AUFGABE
Entwicklung der Erweiterungsoptionen des Dachgeschosses
LÖSUNG
- Detaillierte Bestandsaufnahme
- Entwickeln alternativer Lösungen
- Erarbeiten von Innenraumkonzepten
LEISTUNG
Machbarkeitsstudie Architektur






