PROJEKTE
Wohnbauprojekt der Bayerischen Staatsforsten
Neubau einer Wohnanlage mit 45 geförderten Einheiten
Fischer Planen und Bauen wurde von den Bayerischen Staatsforsten mit den Architektenleistungen, von der Werkplanung bis zur Bauabwicklung, beauftragt. Bereits in der Projektentwicklungsphase wurde der Bauherr unterstützt, indem Kostenbewertungen und Wirtschaftlichkeitsuntersuchungen für die Vorplanungsvarianten erstellt wurden.
Zielsetzung
Das Ziel des Projektes ist die Entwicklung einer kleinen attraktiven Wohnanlage, bei der Holzelemente möglichst vielfältig und großzügig zum Einsatz kommen. Dies wurde in der Entwurfsphase des Bauherrn bereits in der Tragkonstruktion, der Außenverkleidung, sowie bei den Innenwänden und Bodenbelägen berücksichtigt. Die Umsetzung dieser Vorgaben erfolgt in der Werkplanung durch Fischer Planen und Bauen in enger Zusammenarbeit mit den beteiligten Fachplanern, insbesondere dem Tragwerksplaner.
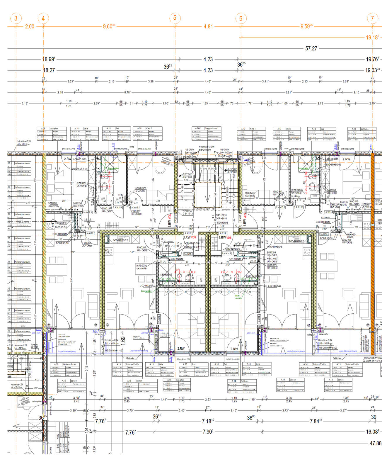
Die Anlage umfasst 45 Wohneinheiten auf einer Gesamtwohnfläche von 3.190,78 m².
Die Aufteilung gestaltet sich wie folgt:
14x 2-Zimmer Wohnungen
22x 3-Zimmer Wohnungen
9x 4-Zimmer Wohnungen
Schallschutz und Forschung
Aufgrund der Lage am Ortsrand von Feucht, zwischen den Bahnlinien Nürnberg-Regensburg und der Autobahn, wurden für die Schallbelastung des Quartiers bereits im Bauantragsverfahren Vorgaben zur Qualität der Außenwände festgelegt.
Da die gesetzlichen Schallschutzwerte auch im Holzbau berücksichtigt werden mussten, hat der Bauherr Herrn Prof. Anton Kraler von der Universität Innsbruck beauftragt, verschiedene Wandaufbauten hinsichtlich der Schallschutzwertung in einer wissenschaftlichen Studie zu untersuchen. Insgesamt wurden über 50 verschiedene Konstruktionen für Innen- und Außenwände geprüft. Die Ergebnisse dieser Studie wurden abschließend vor Ort mit Fischer Planen und Bauen, Herr Stefan und Herr Hollweck, sowie mit dem Bauherrn besprochen. Im Anschluss wurden verschiedene Holzbauprojekte in der Umgebung von Innsbruck besichtigt.
Quartiersgestaltung
Das Quartier besteht aus zwei Gebäudekörpern. Der L-förmige Bau ist so ausgerichtet, dass die Rückseite den Schallbelastungen abgewandt ist, wodurch sich die Wohnungen zum ruhigen Innenhof öffnen. Die östliche Grenze des Innenhofs bildet ein Einzelhaus.
In jedem Geschoss sind 15 Wohnungen in unterschiedlichen Größen eingeplant. Alle Wohnungen verfügen über eine Terrasse mit Gartenanteil oder einen Balkon zum Innenhof. Diese haben aus Schallschutzgründen die Möglichkeit mit Glaswänden geschlossen zu werden.
Im Knick des L-förmigen Gebäudes sind im Erdgeschoss die erforderlichen Technikflächen für die Holzpelletheizung sowie der Elektroanschlussraum untergebracht. In den Obergeschossen stehen den zukünftigen Bewohnern Kellerersatzräume zur Verfügung.
Erschließung der Gebäude
Die Innenräume der Gebäude werden über die jeweiligen Treppenhäuser als 2- bis 4-Spänner erschlossen. Es besteht zudem die Möglichkeit, an den Treppenhäusern nachträglich Aufzugsanlagen zu installieren. Auch wenn derzeit nur die barrierefreie Erreichbarkeit im Erdgeschoss eingeplant ist, sind alle Wohnungen des Quartiers barrierefrei konzipiert.
Innenraumgestaltung und bautechnische Details
Der Zuschnitt der Wohnungen wurde so entwickelt, dass die Aufenthaltsbereiche stets zum Innenhof zeigen, während die Nebenräume an den schallbelasteten Außenwänden liegen.
Die Innenwände sind mit Trockenbau verkleidet. Die Oberflächen der Brettstapeldecken sind als fertige Sichtoberfläche geplant.
Der schallentkoppelte Fußbodenaufbau besteht aus einer Fußbodenheizung und einem Holzparkettbelag.
Jede Wohnung ist mit einer dezentralen Wohnraumlüftung mit Wärmerückgewinnung ausgestattet, was in Kombination mit der notwendigen Wärmedämmung der Außenwände eine Einstufung nach den Vorgaben der KfW 55 ermöglicht.
Die Gründung der Gebäude erfolgt auf einer flachen Bodenplatte mit einer umlaufenden Aufkantung für das Aufstellen der Außenwände. Die erforderlichen Brandwände sind in Stahlbeton geplant, während alle weiteren Wände komplett als Holzbau ausgeführt sind.
Die Außenwände, basierend auf der Studie der Universität Innsbruck, bestehen aus zehn aufeinander abgestimmten Bauteilschichten, die Wohnungstrennwände aus acht und die inneren Wände der Wohnungen nur noch aus drei Bauteilschichten.
In einer aufwendigen Planung von Fischer Planen und Bauen wurden über 80 Detailpläne für unterschiedliche Verbindungs- und Knotenpunkte der Wände und des Innenausbaus entwickelt. Neben den üblichen Grundrissplänen, Schnitten und Ansichten wurden für eine hochwertige Ausschreibung sogar die spätere Teilung der Brettstapeldecken sowie alle werkseitigen Durchbrüche und Aussparungen zeichnerisch dargestellt.
Das Dach besteht ebenfalls aus einer Brettstapeldecke. Als Dachaufbau wurde ein Foliendach mit einem extensiven Retentionsgründach festgelegt. Selbstverständlich sind alle verwendeten Dämmmaterialien aus Holzfaserdämmstoffen, um dem Thema Holz gerecht zu werden.
Als Außenverkleidung ist eine hinterlüftete Fassadenkonstruktion geplant, die aus einer senkrechten Holzschalung mit vorvergrauten Holzbrettern besteht. Eine sichtbare Horizontalteilung erfolgt, aus Brandschutzgründen, zwischen dem Erdgeschoss und dem ersten Obergeschoss. Die Fenstereinfassungen sind mit asymmetrisch angeordneten glatten 3-Schichtplatten geplant, was ein interessantes Spiel in der regelmäßigen Fassade erzeugt. Entsprechend den energetischen Vorgaben sind die Holzfenster dreifach verglast.
Ausblick
Leider wurde das Projekt trotz vollständig erbrachter Werkplanung aller fachlich beteiligten Planer und uns als Architekt durch den Bauherrn zurückgestellt. Es ist nicht ausgeschlossen, dass das Projekt zu einem späteren Zeitpunkt realisiert wird.
AUFGABE
Neubau von 45 Wohnungen
LÖSUNG
- Detaillierte Erarbeitung von Holzbaudetails
- Präzise Abstimmung mit Fachplaner
- Berücksichtigung von hohen Schallschutzanforderungen
LEISTUNG
Architektur Werkplanung
WBS Lageplan
Fundament
Erdgeschoss
Rohbau Erdgeschoss
Obergeschoss
Dachaufsicht










